13296444375

全站搜索

首页 / doinb雷竞技 / 零件图的技术要求及标注
返回

零件图的技术要求及标注

浏览次数:150 分类:doinb雷竞技 分类:行业新闻

一、零件的技术要求
    零件在加工、检验时的各项技术要求,通常是指表面粗糙度、尺寸公差、形状和位置公差,材料的热处理及表面处理等。
二、尺寸公差与配合
1、零件的互换性&定义、作用
    在按规定要求大量制造的零件或部件中,任取一个,不经挑选或修配,就能装配到机器当中,并达到规定的配合要求,零件的这种性质称为零件的互换性。   
118aff17fc966597bbe7df0efaa6a126
2、尺寸公差的基本概念
1)误差与公差定义、区别
2)公差的基本术语
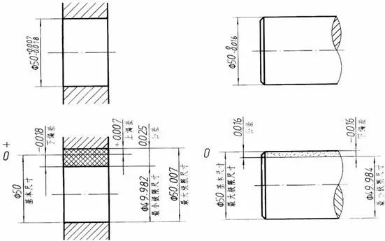
    下面以轴的尺寸c411f55119d8c7ee0f7a25c64d727c10和孔的尺寸cec1bf3e65e7dfb184a2b6a64e225244为例,讲述尺寸公差的基本术语和相互关系。
    基本尺寸  设计给定的尺寸,如φ50。
    实际尺寸  通过测量所得的尺寸
    极限尺寸  允许尺寸变化的两个极限值,它以基本尺寸为基数来确定。
    最大极限尺寸:两个极限尺寸中较大的一个尺寸称,如轴bφ50,孔为φ50.007;
    最小极限尺寸:较小的一个尺寸称如轴为φ49.984,孔为φ49.982
    尺寸偏差   有上偏差和下偏差之分,尺寸偏差可正、负或零。
    上偏差(ES /es ) 最大极限尺寸与基本尺寸的代数差称为上偏差,如50-50=0,50.007-50=0.007;
    下偏差(EI /ei ) 最小极限尺寸与基本尺寸的代数差称为下偏差如49.984-50=-0.016,49.982-50=-0.018。
    尺寸公差  允许零件尺寸的变动量。它等于最大极限尺寸减去最小极限尺寸,或上偏差减去下偏差。公差总是大于零的正数.
    如50-49.984=0-(-0.016)=0.016;50.007-49.982=0.007-(-0.018)=0.025。
    公差带:在公差带图中,由代表上、下偏差的两条直线所限定的一个区域。如下图所示的矩形上边代表上偏差,下边代表下偏差,矩形的长度无实际意义,高度代表公差。  
   零线:在公差带图中,确定偏差的一条基准直线,通常零线表示基本尺寸。当零线画成水平时,零线之上的偏差为正,零线之下的偏差为负
5051e6c928d9d3630736952916727907
    公差带图
1d71362e44b080121a39bf80561c4be2
3.标准公差与基本偏差
    表示公差带的代号p由基本偏差代号和公差等级(数字)组成,例如:
6debf734d0bade837dc47ab546c73561
(1)标准公差确定公差带的大小20个等级:IT01、   IT0、IT1、…、IT18。用于确定公差带的宽度。见书附表。
(2)基本偏差确定公差带的位置
    用于确定公差带相对零线位置的上偏差或下偏差,一般是靠近零线的那个偏差。
(3)公差带代号及查表,如:h7,D6
4、配合
配合:基本尺寸相同的相互配合的孔和轴,其公差带之间的关系称配合。
种类:间隙、过盈、过渡
    不同的公差带决定配和精确程度和松紧程度。
间隙配合(孔的公差带在轴的公差v之上)
eeb33aa300b5713bcdf8d87cf30f4e3d
过盈配合(孔的公差带在轴的公差带之下)
dd7a6b63667d01dce95efdd22a56af68
过渡配合(孔和轴的公差带相互交叠)
18235f39d577ebc22a575933d97ab471
6、公差的标注和识读
    1)上、下偏差的字高比尺寸数字小一号,且下偏差与尺寸数字在同一水平线上;
    2)当公差带相对于基本尺寸对称,即上、下偏差互为相反数时,可采用“±”加偏差绝对值的标注方法,如φ48±0.008。此时,偏差的高度和尺寸数字的高度一样。
    3)上、下偏差的小数位数必须相同、对齐。当上偏差或下偏差为零时,小数点末位的“0”一般不必注写。
    4)在装配图上一般只标注配合代号。配合代号用分数形式表示,分子为孔的公差带代号,分母为轴的公差带代号。
    5)对于与标准件(如轴承)相配合的孔和轴,则只标注非基准件(配合件)的公差带代号。如轴承内圈与轴配合,只标注轴的公差带代号;轴承外圈与箱体孔座配合,只标注孔的公差带代号 。
零件图上的标注
74a3ab63af5abe6cbc1b19b7788a4751
三、表面粗糙度
1、粗糙度的定义
    加工表面上具有的较小间距和峰谷所组成的微观几何形状特性,称为零件的表面粗糙度。
    表面粗糙度是评定零件表面质量的一项重要指标,它对零件的使用性能有很大的影响,零件的耐磨性、抗腐蚀性1配合质量都和表面粗糙度有关。
641c0744f29fc33e17e7d780ce9f1095
2、粗糙度的评定参数:
    国标规定粗糙度以参数值的大小进行评定。常用的参数值有轮廓算术平均偏差Ra、微观不平十点高度Rz、轮廓最大高度Ry三种。
c35c26e8da502d3385c70b0441bd30b6
    生产中最常采用的是参数值有轮廓算术平均偏差Ra。书上图表给出了国标推荐的Ra优先选用系列。
   由表Ra值与常用加工方法的对应关系中可见,Ra值越大,加工表面越粗糙;Ra值越小,加工表面越光滑平整。
3、表面粗糙度与光洁度的比较(十四个等级)
be52e25a2e8f72ac31a5317027577838
表面粗糙度Ra值与加工方法
edf1c3d987a91a197a77d49eacc90768
4、表面粗糙度的符(代)号
五、表面粗糙度的标注
    根据国标GB/T131-1993规定,表面粗糙度的代号的标注方法 如下:
1、表面粗糙度数字和符号的方向必须遵守下图的规定。代号中数字的方向与尺寸数字的方向一致。
f7ba6a80136f82a8c9b8296cca643bd7
2、表面粗糙度符号、代号一般标注在可见轮廓线、尺寸界限、引出线或它们的延长线上,符号的尖端必须从材料外指向表面;同一图样上,每一个表面一般只标注一次符号、代号,并尽可能靠近有关尺寸线。
  当位置狭小时符号、代号可引出标注。
9a78a17e1657474523955b16b0cfae88
3、当零件所有表面粗糙度要求一致时,其符号、代号在图样的右上角统一标注,其高度应该是图中字符的1.4倍;
    零件中使用最多的一种粗糙度符号、代号可统一标注在图样的右上角,并加注“其余”其两字。此时符号、代号、文字高度应该是图中其它字符的1.4倍。 

点击取消回复

    分类

    在线客服x

    客服
    顶部 回到顶部
    Baidu
    map